シンプルで低価格な電動カーゲート

■シンプルで低価格な電動カーゲートです。
■開閉時の動作音を抑えた静音設定です。
■コンパクトな設計で、車路を広く確保できます。
■その他制御機器との組み合わせて、様々な入出場システムの構築が可能です。
駐車場の出入り口に設置し、車両の入出場を管理する電動カーゲートです。ポール式のゲートで不審車両の進入を防ぎます。
特徴
■バーの下に車両がいるとセンサーが検知してゲートバーが降下しない安全設計です。
■バーの長さは3m、4m、6mがあります。(3mはアルミ製、4mと6mはFRP製)
■停電時はバーを手で上げることができます。
仕様と操作方法
カーゲートの仕様・操作方法をご紹介致します。
仕様
標準仕様 |
||
|---|---|---|
|
■カーゲート |
■リモコン1台 |
■ポール |
オプション仕様 |
|---|
| ■カーゲートカバーをステンレスに変更できます。 ■ポールの長さ(3m・4m・6m、4m折れポール) |
標準操作方法
標準仕様では、付属リモコンでゲート(ポール)の開閉を操作します。
下記の様な手順で車両の入出場を行います。
標準操作リモコンでの入退場の流れ |
|||
|
@カーゲートの手前で オープンボタンを押す |
Aゲートが開く ゲートを通過 |
B一旦停止して クローズボタンを押す |
Cゲートが閉まる |
|---|---|---|---|
|
リモコンの所有者のみが、入庫可能です。簡単に入出場管理を行う事が出来ます。 |
|||
オプション操作方法
下記の制御機器を使用して様々な入出場システムの構築が可能です。
用途に合わせてシステムを選定する事で、車両の入出場をスムーズに出来ます。
また、システムを組み合わせる事で、よりスムーズな入出場方法で車両を管理致します。
|
ゲート通過後は自動で閉める 退出時は自動で開く |
ETCの様に近づくと開く |
カードを当てると開く |
|---|---|---|
|
ループコイルシステム |
RFIDシステム |
ICカードシステム |
コインを入れる |
設定した時間帯を開放 |
|---|---|
|
コインシステム |
タイマーシステム |
カスタマイズ例
システムを組み合わせる事で、よりスムーズな入出場方法で車両を管理致します。
中でもループコイルシステムを組み合わせる事で、よりスムーズな入出場が可能です。
「ICカードシステム+ループコイルシステム」を組み合わせたシステム
|
「ICカードシステム+ループコイルシステム」を組み合わせたシステム |
|
|
(入場) 読み込み部にカードを接触してゲート開放 |
(出場) ゲートに近づくだけで、ゲート開放 ※ゲート通過後は、自動でゲートが閉まります。 |
「ループコイルシステム+コインシステム」を組み合わせたシステム
|
「コインシステム+ループコイルシステム」を組み合わせたシステム |
|
|
(入場) ゲートに車両が近づくだけで、ゲート開放 |
(出場) 専用コインを投入口にいれてゲートを開放 ※ゲート通過後は、自動でゲートが閉まります。 |
ご希望の入出場に関するイメージをお聞かせください。出来る限り対応致します。
設置イメージ
|
公共施設駐車場 |
個人駐車場 |
仕様書
| 電源電圧 | AC100V ±10% 50/60Hz |
|---|---|
| 消費電圧 | 待機時:15W 動作時:80W 以下 |
| 使用温度 | −20℃〜+55℃ |
| 使用湿度 | 10%〜90% (結露なきこと) |
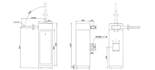
| 外形寸法 | W325×H1042×D325 |
| 外装 | 鋼板製(標準) 塗色:D75-50B(日塗工近似色) |
| 重 量 | 約25kg (ゲートバーなし) |
| その他 |
開閉指令:無電圧a 接点DV12V開場・閉場信号:無電圧a 接点DC30V 以下 |
寸法図

トップページに戻る→
制御盤の設計・製作・据付、駐車場関連機器の設計・製造・販売・設置

株式会社エス・システム
〒981-3217
宮城県仙台市青葉区下愛子二本松25-13
TEL:022-344-8725
FAX:022-344-8725








